一、概述
回轉窯托輪應平行于窯體中心線安裝,窯體為傾斜放置,在自重作用下有下滑的趨勢,采用液壓推力擋輪液壓站,使 窯體按預想的速度(一般約 2~3mm/h)強制上竄和有控制的下滑,從而有效地保證輪帶與托輪的均勻接觸和磨損,以節 省托輪調整的工作量。
液壓擋輪正常上下游動的行程為± 10mm,當上下游動的行程達到 15mm 時,應發出報警訊號,當上下游動達到極限行 程(± 30mm)時,應立即停止對主電機供電,允許通過調整限位開關的位置對上述控制行程作± 2mm 的少量變動。
二、技術參數
1、工作壓力:4~10MPa
2、公稱流量:1.14L/min
3、過濾器精度:20 μ m
4、油箱容積:0.11.png)
5、電加熱器功率:AC220V,1kw
6、電機功率:0.75kw
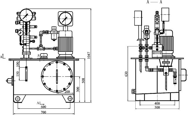
三、外形尺寸

四、工作原理
SZ-C 稀油潤滑裝置是控制回轉窯液壓擋輪動作的動力裝置,其工作原理如下圖所示: 當窯體下移偏離零位(即裝有行程開關擋輪中線與輪帶中線重合位置)25mm 時,行程開關箱中一觸點動作,油泵4起動,換向閥 16 的電磁感應圈 A 接通,壓力油通過換向閥左位經調速閥 15 進入液壓缸,這時液壓缸活塞在壓力油作 用下,推動擋輪迫使窯體向上移動。
當窯體上移到上限值時,行程開關箱中一觸點動作,油泵 4 停止,換向閥 16 的電磁感應圈 B 接通,液壓缸中的油經調速閥 13 和換向閥 16 右位回油箱,窯體靠自重下移,下移到下限值時,行程開關箱中一觸點動作,換向閥 16 的電 磁感應圈 B 斷開,油泵 4 起動,換向閥 16 電磁感應圈 A 接通,液壓缸活塞在壓力油作用下,推動擋輪迫使窯體向上移動。
若窯體在異常情況下向上或向下到極限位置時,行程開關箱中觸點動作,發出報警:并且電磁換向閥換向

SZ-C 稀油潤滑裝置原理圖
|
序 號
|
名 稱 規 格
|
數 量
|
備 注
|
|
1
|
油箱
|
1
|
|
|
2
|
電加熱器 SRY2-220/1
|
1
|
電壓 220V 功率 1 K W
|
|
3
|
電接點溫度計 WTZ-288
|
1
|
|
|
4
|
變量泵
|
1
|
|
|
5
|
電機 Y90S-6B5 (V1)
|
1
|
轉速 910r/min 功率 0.75KW
|
|
6
|
單向閥 DIF-L10H1
|
2
|
開啟壓力 0.035MPa
|
|
7
|
濾油器 ZU-H10 × 20S
|
1
|
|
|
8
|
單聯底板塊
|
1
|
|
|
9
|
測壓墊塊
|
1
|
|
|
10
|
壓力表開關 3K-F6D
|
1
|
|
|
11
|
溢流閥 Y-Fc6D-P/O
|
1
|
調定壓力:1 0 M P a
|
|
12
|
測點塊 C-F6D-A
|
1
|
|
|
13
|
調速閥
|
1
|
|
|
14
|
溢流閥
|
1
|
調定壓力:1 4 M P a
|
|
15
|
調速閥
|
1
|
|
|
16
|
電磁換向閥
|
1
|
|
|
17
|
壓力表 YN-60
|
1
|
范圍:0 ~25MPa
|
|
18
|
吸油過濾器 WU-16 × 80-J
|
1
|
|
|
19
|
單向閥 D1F-L10H3
|
1
|
開啟壓力 0.35MPa
|
|
20
|
卡套式截止閥 J93W-160P
|
1
|
配和外徑14mm 壓力:16MPa
|
|
21
|
電接點壓力表 YX-150
|
1
|
測壓范圍:0 ~25MPa
|
|
22
|
截止閥
|
2
|
|
|